36A King William Street, Adelaide
overview
-
1P4019
-
Retail
-
Sold
-
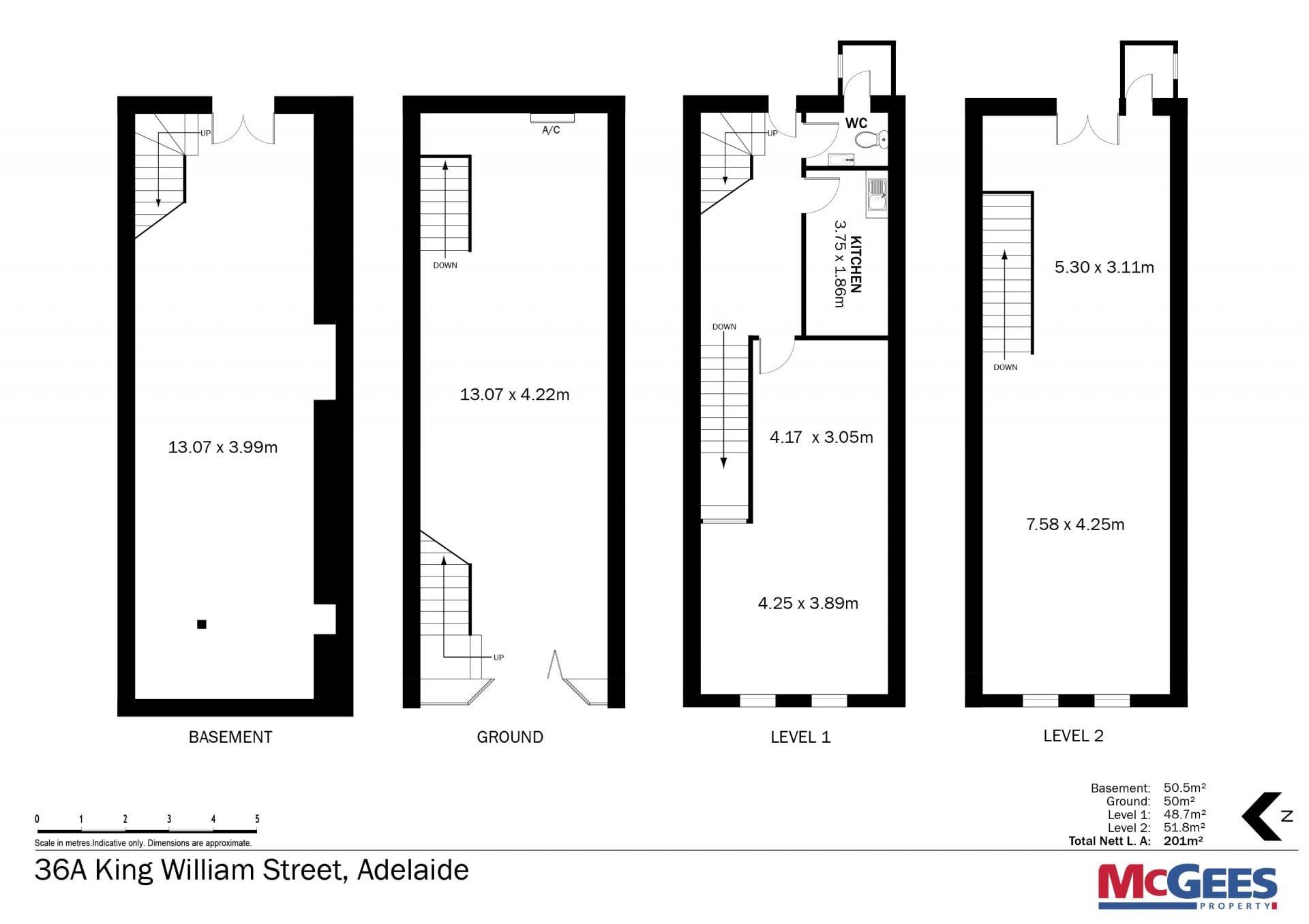
201 sqm
-
50 sqm
-
4.8 metre
Description
Iconic Adelaide CBD investment - "Beehive Corner"
- Whole building of 201 sqm*
- Three floors plus quality basement of 50 sqm* each
- Ground for retail, two floors of office and basement
- Net income of $49,305 p.a.* plus GST from 1 November 2024
- 5 year lease to November 2025 over all 4 levels
- Corner of Rundle Mall - Adelaide's fashion boulevard
- Adjacent Haigh's Chocolates
- Owner-occupier potential from 2025
For Sale by Expressions of Interest closing Wednesday 25 September 2024 at 4pm.
For further details or to arrange an inspection of 36A King William Street, Adelaide contact Tim Pozza of McGees Property (RLA 1722).
(* approx)
- Three floors plus quality basement of 50 sqm* each
- Ground for retail, two floors of office and basement
- Net income of $49,305 p.a.* plus GST from 1 November 2024
- 5 year lease to November 2025 over all 4 levels
- Corner of Rundle Mall - Adelaide's fashion boulevard
- Adjacent Haigh's Chocolates
- Owner-occupier potential from 2025
For Sale by Expressions of Interest closing Wednesday 25 September 2024 at 4pm.
For further details or to arrange an inspection of 36A King William Street, Adelaide contact Tim Pozza of McGees Property (RLA 1722).
(* approx)
