167A-173 Hindley Street, Adelaide
Asking Price: $11,650,000
overview
-
1P4330
-
Development
-
For Sale
-
1839 sqm
-
1794 sqm
-
51.02 metre
Description
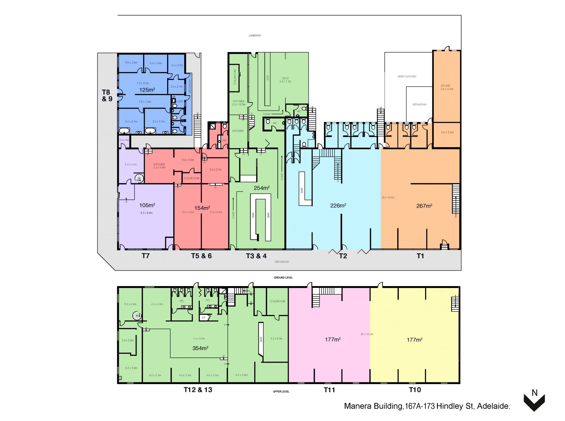
Rare CBD Corner Opportunity – Income + Redevelopment Upside
• 1,794 sqm* prominent CBD corner site with dual frontage
• Substantial 1,839 sqm* building area across two levels
• Zoned City Main Street – development potential up to 53m
• 54% of the building is leased to 5 tenants, all with redevelopment clauses
• Estimated net income of $316,094 p.a.*
• Prime West End location near Universities and Adelaide BioMedical Precinct
• No Stamp Duty or GST payable on purchase price
For Sale via Private Treaty with an Asking Price of $11,650,000
For more information or to arrange for an inspection of 167A-173 Hindley Street, Adelaide please contact Yee Ng or Simon Lambert of McGees Property (RLA 1722).
(* approx.)
• Substantial 1,839 sqm* building area across two levels
• Zoned City Main Street – development potential up to 53m
• 54% of the building is leased to 5 tenants, all with redevelopment clauses
• Estimated net income of $316,094 p.a.*
• Prime West End location near Universities and Adelaide BioMedical Precinct
• No Stamp Duty or GST payable on purchase price
For Sale via Private Treaty with an Asking Price of $11,650,000
For more information or to arrange for an inspection of 167A-173 Hindley Street, Adelaide please contact Yee Ng or Simon Lambert of McGees Property (RLA 1722).
(* approx.)
